
qw潛水排污泵_污水排污泵
潛水排污泵是將泵連接到電動機并同時在液體下運行的泵產品。潛水排污泵可以撕開并切割污水中包含的長纖維,袋子,皮帶,草,布塊等,并且切割順暢。卸料特別適用于輸送含有硬固體和纖維材料的液體,尤其是臟,粘和滑的液體。
qw潛水排污泵采用特殊的結構和新型的機械密封件,可輸送固體和長纖維。與傳統葉輪相比,泵葉輪具有單通道或雙通道形狀,類似于具有相同橫截面尺寸的彎頭,并且流動性非常好。旋轉適中,泵效率高。高葉輪和葉輪經過了動平衡測試,以確保泵在運行過程中不振動。
| 型號 | 流量(m^3/h) | 揚程(m) | 功率(kw) | 轉速(r/min) |
| WQX12.5-40 | 12.5 | 40 | 3 | 2900 |
| WQX12.5-60 | 12.5 | 60 | 4 | 2900 |
| WQX12.5-80 | 12.5 | 80 | 5.5 | 2900 |
| WQX12.5-100 | 12.5 | 100 | 7.5 | 2900 |
| WQX12.5-120 | 12.5 | 120 | 9.2 | 2900 |
| WQX12.5-140 | 12.5 | 140 | 11 | 2900 |
| WQX12.5-160 | 12.5 | 160 | 13 | 2900 |
| WQX12.5-180 | 12.5 | 180 | 15 | 2900 |
| WQX12.5-180 | 12.5 | 180 | 15 | 2900 |
| WQX12.5-200 | 12.5 | 200 | 18.5 | 2900 |
| WQX15-30 | 15 | 30 | 18.5 | 2900 |
| WQX15-50 | 15 | 50 | 3 | 2900 |
| WQX15-70 | 15 | 70 | 4 | 2900 |
| WQX15-90 | 15 | 90 | 5.5 | 2900 |
| WQX15-110 | 15 | 110 | 7.5 | 2900 |
| WQX15-130 | 15 | 130 | 9.2 | 2900 |
| WQX15-150 | 15 | 150 | 11 | 2900 |
成套潛水排污泵設備包括:潛水排污泵,水泵控制柜,自動耦合裝置等部件組成。

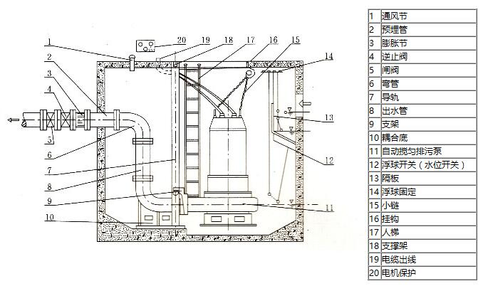
潛水排污泵結構圖
與普通的臥式或立式排污泵相比,潛水排污泵顯然具有以下優點:
1、結構緊湊,占地面積小。由于潛水排污泵在液體中運行,因此可以直接安裝在排污池中,而無需專門的泵房來安裝泵或機器,這可以節省大量土地和基礎設施成本。
2、方便安裝和維護。小型排污泵可以自由安裝,大型排污泵一般都配備了自動安裝的自動聯接裝置,非常便于安裝和維護。
3、連續運行時間長。污水泵和電機是同軸的,軸短,旋轉部件重量輕,因此軸承(徑向)上的負載相對較小,并且使用壽命比普通泵更長。
4、不會出現氣蝕或灌溉等問題。后者尤其為操作員提供了較大的便利。
潛水排污泵越來越受到人們的關注,它們從用于輸送純凈水的泵中輸送各種類型的家庭污水,工業廢水,建筑工地污水,液體供應等。使用范圍正在擴大到可以完成的程度。等待。它在市政工程,工業,醫院,建筑,飯店和節水工程等各個行業中發揮著非常重要的作用。
qw潛水排污泵較嚴重的問題是可靠性,因為排污泵在液體下使用。輸送的介質是包含固體物質的混合液體。泵非常靠近泵和電動機,垂直放置,并且旋轉部件的重量與液壓作用下的葉輪方向相同。由于這些問題,污水泵在密封,電機承載能力,軸承放置和選擇方面比普通污水泵有更高的要求。
(1)倒入混凝土基礎。
機組基礎通常是用C15或C20混凝土澆鑄的,并且由一步注入法組成。為了給基礎施加沉重的負載,基礎通常是一個金字塔,上面有一個小的頂部和一個很大的底部,或者是一個遍布整個地基的坑底(坑)底板。基礎的頂面是水平的,必須嵌入地腳螺栓。
(2)導桿和泵座的安裝。
提起泵座并將其緩慢降低到裝置的底部。泵座上的螺栓孔面向嵌入底座的地腳螺栓。當泵座處于水平位置時,擰緊地腳螺栓。導向桿的下部通過螺釘,螺栓和插入式連接到泵座,而上部則連接到支撐架。支撐框架和導桿通常由碳鋼管,不銹鋼或鍍鋅鋼管制成。
(3)泵體的安裝。
提起泵體,將耦合裝置(耦合裝置,水泵,通常為整個裝置制造的電動機)放在導桿上,并沿著導桿到達耦合裝置和泵底座的出口彎頭。并緩慢降低泵體。連接后,水泵的出口管必須與出口彎頭入口的中心線重合。

潛水排污泵安裝圖
1、大口徑不堵塞潛水排污泵
2、用刀自動切布,自動除草混入潛水排污泵
3、安裝在水邊自吸泵體式排污泵
4、潛水排污泵-砂漿泵可以將泵體浸入原料
5、中,具有出色的耐腐蝕性和耐磨性,也是一種排污泵。
1、逐個公司排放廢水。
2、城市污水處理廠排污系統。
3、地鐵,地下,私人防空系統排水站。
4、醫院,旅館和高層建筑污水排放。
5、住宅區的污水排放站。
6、市政工程,在施工現場排放稀泥。
7、用于供水設施的供水設備。
8、農場的污水排放和農村農田的灌溉。
9、勘探,采礦和水處理的輔助設備。
10、代替肩挑人擔,吸送河泥。
11、工作條件:水溫≤60°C,液相PH值4-10。
1、如果濕度傳感器或溫度傳感器發出警報,則泵體內會產生異常振動或噪音,或者輸出水壓下降且功耗顯著增加,請立即排干潛水排污泵已關閉以進行維護。
2、如果將氣密性差的潛水泵長時間浸入水中,即使不使用,絕緣值也會逐漸降低,即使運行時間短于潛水排污泵的連續運行,絕緣值也無法使用。絕緣會在一段時間內消失。因此,集水池中的潛水泵可能無法用作備用泵。如果條件允許,您可以在游泳池外曬干。如果正在運行的潛水泵發生故障,請立即停止并提起它,然后放下備用泵。我會和你一起去。
3、請勿經常打開和關閉潛水泵。否則會影響潛水泵的使用壽命。當潛水泵停止運轉時,管道中的水會回流。如果此時立即重啟,則電動泵將過載,并且會產生不必要的沖擊載荷。同樣,如果潛水泵頻繁打開或關閉,則會損壞和撞擊。零件損壞并損壞整個電動泵。
4、停止后,電動機必須完全停止才能重新啟動。
5、檢查電動泵時,必須關閉電源。
6、潛水泵工作時,請勿清洗,游泳或將牲畜放在附近的水中,以免在電動泵泄漏時發生電擊事故。
潛水排污泵相關產品推薦